Hiiumaal eramaja rekonstrueerimine ja ümberehitus

2023 | Rek. ja ümberehitus| Arhitekt Kätlin Tammeveski

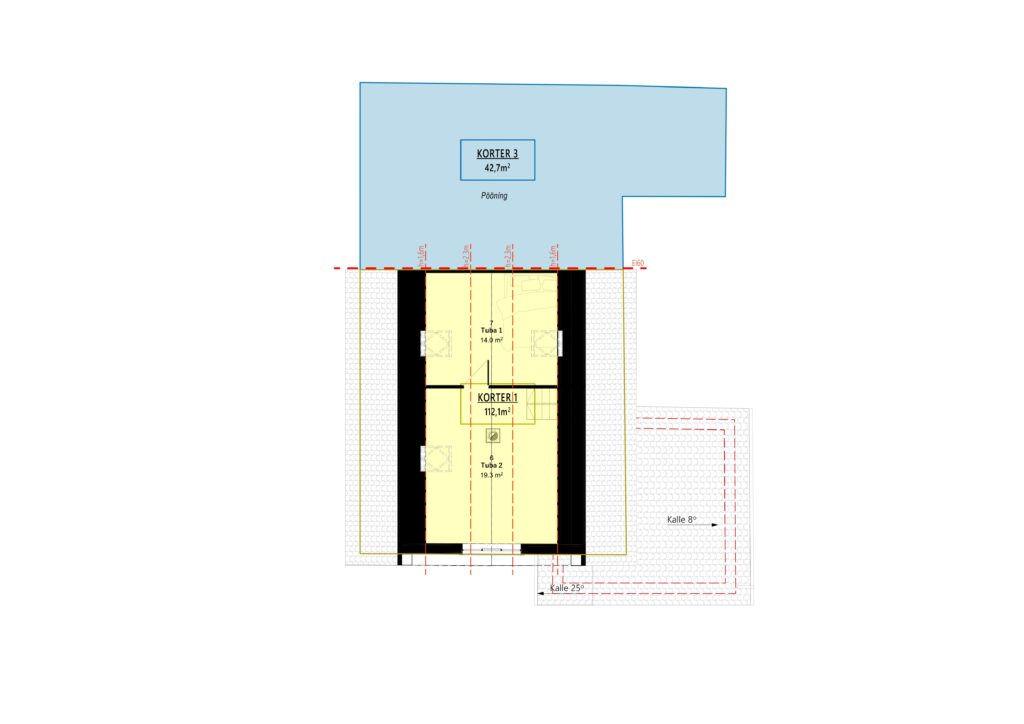
Kahekorruseline eramu

Korter nr 1 netopind on 112,1m2 ja ehitisealune pind 148,9 m2. Olemasolevast hoonest uuendatakse üks pool. Ümberehitus annab kaasaegse kasutusmugavuse, säilitades aldse hoone iseloomu.